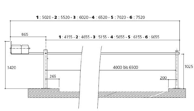
Schranke mit Aluminiumbaum

Schranke mit Aluminiumbaum Eigenschaften identisch mit Schranke mit Stahlbaum.
Allerdings Baum aus Aluminium.

Sie können unten die gewünschte Länge und zwischen:
- Vorhängeschloss und
- 3-Kant-Schloß
wählen! Der entsprechende Preis wird automatisch aktualisiert.

Der Preis ändert sich bei Auswahl des Artikels!

 

 
St

202150 202151 202152 202153 202154 202155 272150 272151 272152 272153 272154 272155