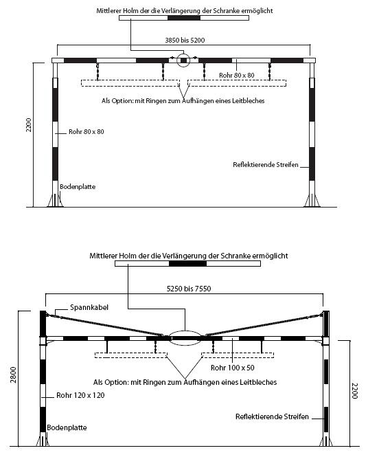
Universale feststehende Portalrahmen
Ein mittlerer Querholm wird zwischen zwei waagerechten Stangen verschoben, um den Portalrahmen zentimetergenau an den Montageort anzupassen. Der Portalrahmen ist für alle Absperrbreiten geeignet.
202330 202331
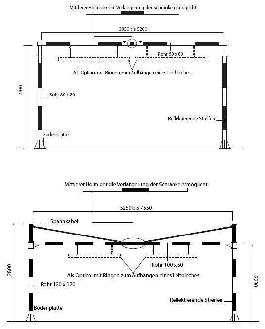
Ein mittlerer Querholm wird zwischen zwei waagerechten Stangen verschoben, um den Portalrahmen zentimetergenau an den Montageort anzupassen. Der Portalrahmen ist für alle Absperrbreiten geeignet.
202330 202331